中古戸建 中央区高志1丁目 新潟県新潟市中央区高志1丁目 18-7|2,590万円の中古一戸建て|センチュリー21越後ホームズ 新潟店
| 価格 | 2,590万円 ![]() |
||||
|---|---|---|---|---|---|
| 所在地 | 新潟県新潟市中央区高志1丁目 18-7
この地域周辺の物件を見る |
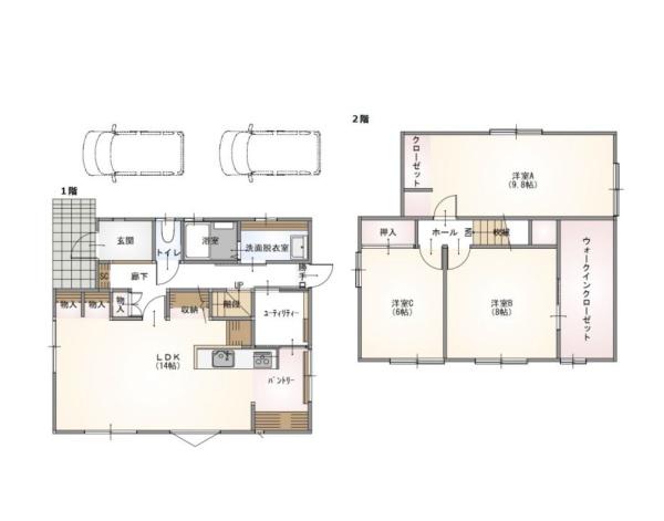
土地面積 | 164.71m² (49.82坪) | 建物面積 | 108.68u |
| 築年月 | 1983年4月築 | 間取り | 3LDK (-) | ||
| 交通 |
JR上越新幹線 新潟 徒歩32分/バス18分 高志中等教育学校前 停歩8分
JR信越本線 越後石山 徒歩32分 |
||||
| 特徴 |
|
|---|---|
| セールスコメント | スーパー等の商業施設が車で5分!弁天線や紫竹山インターアクセス良好な閑静な住宅街 |
| 採光面 | - | 構造/階数 | 木造/地上2階建 |
|---|---|---|---|
| 建ぺい率 | 60(%) | 容積率 | 200(%) |
| 駐車場 | 有 | 現況/引渡し | 空家/相談 |
| 土地権利 | 所有権 | 私道負担面積 | - |
| 接道状況 | 接道: 北西 道路幅: 6m | 用途地域 |
第一種中高層住居専用地域
|
| セットバック | - | 法令上の制限 | - |
| 地目 | 宅地 | 地勢 | 平坦 |
| 建築確認番号 | 都市計画 | 市街化区域 | |
| 取引態様 | 売主 | ||
| 情報更新日 | 2026年01月21日 | 次回更新日 | 2026年02月04日 |
| 小学校区 | 桜が丘小学校 (新潟市中央区) この学区の他の物件を見る |
中学校区 | 山潟中学校 (新潟市中央区) この学区の他の物件を見る |
|---|
| 価格 | 万円 | ||
|---|---|---|---|
| 年利率 | % |
||
| ボーナス払い | 返済年数 | ||
| 頭金 | 直接入力する | 万円 | |

毎月のご返済額 |
ボーナス(×年2回) |
物件価格2,590万円 |
新潟本店
025-385-7987
新潟東店
025-256-8844
上越店
025-520-9460
\\2025年7月リフォーム済//
●敷地がゆとりの49.82坪
●車2台駐車が可能
●大容量のWIC等、収納充実
●3面採光の明るいLDK
●ランドリ―スペースあり