1号棟 西区松海が丘1丁目 第4 クレイドルガーデン 新潟県新潟市西区松海が丘1丁目 22-9(隣地)|2,480万円の新築一戸建て|センチュリー21越後ホームズ 新潟店
| 価格 | 2,480万円 ![]() |
||||
|---|---|---|---|---|---|
| 所在地 | 新潟県新潟市西区松海が丘1丁目 22-9(隣地)
この地域周辺の物件を見る |
土地面積 | 122.02m² (36.91坪) | 建物面積 | 95.58u |
| 築年月 | 2026年2月築 | 間取り | 4LDK (-) | ||
| 交通 |
JR越後線 寺尾 徒歩18分
JR上越新幹線 新潟 バス39分 上新栄町地蔵前 停歩1分 |
||||
| 特徴 |
|
|---|---|
| セールスコメント | \子育てグリーン住宅支援対象/スーパー車で3分でお買い物便利!バス停徒歩1分 |
| 採光面 | 東南 | 構造/階数 | 木造/地上2階建 |
|---|---|---|---|
| 建ぺい率 | 50(%) | 容積率 | 100(%) |
| 駐車場 | 有 | 現況/引渡し | 建築中/2026年2月下旬 |
| 土地権利 | 所有権 | 私道負担面積 | - |
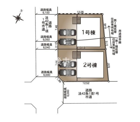
| 接道状況 | 接道: 南西 公道 道路幅: 6m | 用途地域 |
第一種低層住居専用地域
|
| セットバック | - | 法令上の制限 | - |
| 地目 | 宅地 | 地勢 | 平坦 |
| 建築確認番号 | 第R07SHC117482号 | 都市計画 | 市街化区域 |
| 取引態様 | 一般媒介 | ||
| 情報更新日 | 2025年12月17日 | 次回更新日 | 2025年12月31日 |
| 小学校区 | 真砂小学校 (新潟市西区) この学区の他の物件を見る |
中学校区 | 五十嵐中学校 (新潟市西区) この学区の他の物件を見る |
|---|
| 価格 | 万円 | ||
|---|---|---|---|
| 年利率 | % |
||
| ボーナス払い | 返済年数 | ||
| 頭金 | 直接入力する | 万円 | |

毎月のご返済額 |
ボーナス(×年2回) |
物件価格2,480万円 |
![]() |
![]() |
新潟市西区松海が丘1丁目 22-9(隣地)
2480万円潤オ2580万円 |
新潟本店
025-385-7987
新潟東店
025-256-8844
上越店
025-520-9460
\即時予約&当日見学/
●月々支払い5.1万円〜
●前面道路6mで駐車も安心
●40万円の補助金対象
●バス停徒歩1分
●畳コーナーがリビング隣接
●主寝室が広々8.2帖