新築戸建 長岡市新保1丁目 第1 クレイドルガーデン 新潟県長岡市新保1丁目 8-35|3,080万円の新築一戸建て|センチュリー21越後ホームズ 新潟店
| 価格 | 3,080万円 ![]() |
||||
|---|---|---|---|---|---|
| 所在地 | 新潟県長岡市新保1丁目 8-35
この地域周辺の物件を見る |
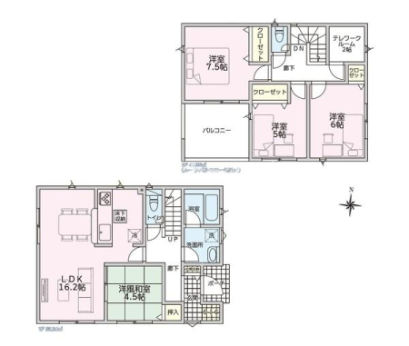
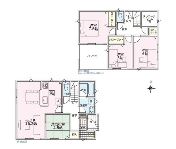
土地面積 | 305.24m² (92.33坪) | 建物面積 | 97.59u |
| 築年月 | 2025年12月築 | 間取り | 4SLDK (-) | ||
| 交通 |
JR信越本線 北長岡 徒歩16分
|
||||
| 特徴 |
|
|---|---|
| セールスコメント | \子育てグリーン住宅支援対象/車で3分圏内にスーパーやドン・キホーテ等お店が充実 |
| 採光面 | 南 | 構造/階数 | 木造/地上2階建 |
|---|---|---|---|
| 建ぺい率 | 60(%) | 容積率 | 200(%) |
| 駐車場 | 有 | 現況/引渡し | 建築中/2025年12月下旬 |
| 土地権利 | 所有権 | 私道負担面積 | - |
| 接道状況 | 接道: 北 公道 道路幅: 8.5m | 用途地域 |
第一種中高層住居専用地域
|
| セットバック | - | 法令上の制限 | - |
| 地目 | 宅地 | 地勢 | 平坦 |
| 建築確認番号 | 第R07SHC115183号 | 都市計画 | 市街化区域 |
| 取引態様 | 一般媒介 | ||
| 情報更新日 | 2025年11月07日 | 次回更新日 | 2025年11月21日 |
| 小学校区 | () |
中学校区 | 東北中学校 (長岡市) この学区の他の物件を見る |
|---|
| 価格 | 万円 | ||
|---|---|---|---|
| 年利率 | % |
||
| ボーナス払い | 返済年数 | ||
| 頭金 | 直接入力する | 万円 | |

毎月のご返済額 |
ボーナス(×年2回) |
物件価格3,080万円 |
新潟本店
025-385-7987
新潟東店
025-256-8844
上越店
025-520-9460
\敷地92坪!駐車3台以上可/
●40万円の補助金
●前面道路8.5m以上
●スーパー等が車で3分圏内
●バス停徒歩1分