1号棟 北区西名目所 第2 クレイドルガーデン 新潟県新潟市北区西名目所 4077-66(隣地)|2,180万円の新築一戸建て|センチュリー21越後ホームズ 新潟店
| 価格 | 2,180万円 ![]() |
||||
|---|---|---|---|---|---|
| 所在地 | 新潟県新潟市北区西名目所 4077-66(隣地)
この地域周辺の物件を見る |
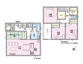
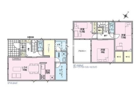
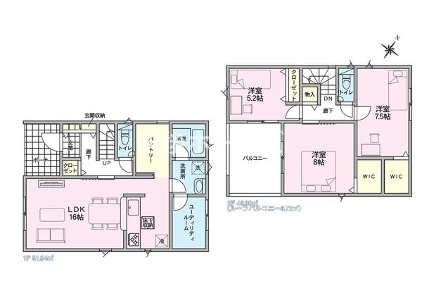
土地面積 | 144.29m² (43.64坪) | 建物面積 | 98.82u |
| 築年月 | 2026年2月築 | 間取り | 3LDK (-) | ||
| 交通 |
JR白新線 新崎 徒歩42分/バス12分 西名目所 停歩2分
JR上越新幹線 新潟 バス42分 本町一丁目 停歩8分 |
||||
| 特徴 |
|
|---|---|
| セールスコメント | \子育てグリーン住宅支援対象/ござれや橋まで車で4分で東区もアクセス良好♪ |
| 採光面 | 南西 | 構造/階数 | 木造/地上2階建 |
|---|---|---|---|
| 建ぺい率 | 60(%) | 容積率 | 200(%) |
| 駐車場 | 有 | 現況/引渡し | 建築中/2026年2月下旬 |
| 土地権利 | 所有権 | 私道負担面積 | - |
| 接道状況 | 接道: 南西 公道 道路幅: 6m | 用途地域 |
第一種中高層住居専用地域
|
| セットバック | - | 法令上の制限 | - |
| 地目 | 宅地 | 地勢 | 平坦 |
| 建築確認番号 | 第R07SHC118330号他 | 都市計画 | 市街化区域 |
| 取引態様 | 一般媒介 | ||
| 情報更新日 | 2025年11月11日 | 次回更新日 | 2025年11月25日 |
| 小学校区 | 松浜小学校 (新潟県新潟市北区) この学区の他の物件を見る |
中学校区 | 松浜中学校 (新潟県新潟市北区) この学区の他の物件を見る |
|---|
| 価格 | 万円 | ||
|---|---|---|---|
| 年利率 | % |
||
| ボーナス払い | 返済年数 | ||
| 頭金 | 直接入力する | 万円 | |

毎月のご返済額 |
ボーナス(×年2回) |
物件価格2,180万円 |
![]() |
![]() |
新潟市北区西名目所 4077-66(隣地)
2180万円潤オ2280万円 |
新潟本店
025-385-7987
新潟東店
025-256-8844
上越店
025-520-9460
\月々支払5.1万円〜/
●40万円の補助金
●駐車3台可能!前面道路6m
●スーパー徒歩4分
●ござれや橋まで車で4分
●WIC2ヶ所・パントリー等収納充実