2号棟 西区金巻 第1 クレイドルガーデン 新潟県新潟市西区金巻 2037-1|2,280万円の新築一戸建て|センチュリー21越後ホームズ 新潟店
| 価格 | 2,280万円 ![]() |
||||
|---|---|---|---|---|---|
| 所在地 | 新潟県新潟市西区金巻 2037-1
この地域周辺の物件を見る |
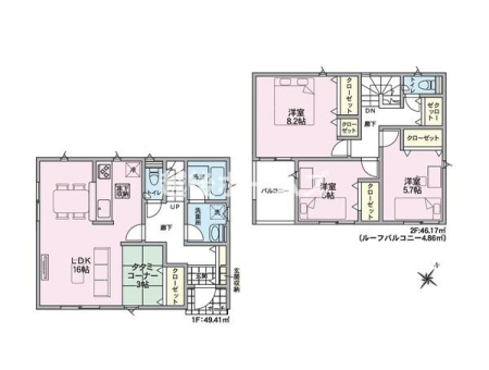
土地面積 | 170.14m² (51.46坪) | 建物面積 | 95.58u |
| 築年月 | 2026年3月築 | 間取り | 3LDK (-) | ||
| 交通 |
- - -
|
||||
| 特徴 |
|
|---|---|
| セールスコメント | \年度内引渡し可能/スーパーやドラッグストアが車で4分でお買い物も安心! |
| 採光面 | 東南 | 構造/階数 | 木造/地上2階建 |
|---|---|---|---|
| 建ぺい率 | 60(%) | 容積率 | 200(%) |
| 駐車場 | 有 | 現況/引渡し | 建築中/2026年3月下旬 |
| 土地権利 | 所有権 | 私道負担面積 | あり 52.04m² 持分:1/3 |
| 接道状況 | 接道: 東南 公道 道路幅: 4.89m | 用途地域 |
指定なし
|
| セットバック | - | 法令上の制限 | - |
| 地目 | 宅地 | 地勢 | 平坦 |
| 建築確認番号 | 第R07SHC116089号 | 都市計画 | 市街化調整区域 |
| 取引態様 | 一般媒介 | ||
| 情報更新日 | 2026年01月20日 | 次回更新日 | 2026年02月03日 |
| 小学校区 | 大野小学校 (新潟市西区) この学区の他の物件を見る |
中学校区 | 黒埼中学校 (新潟市西区) この学区の他の物件を見る |
|---|
| 価格 | 万円 | ||
|---|---|---|---|
| 年利率 | % |
||
| ボーナス払い | 返済年数 | ||
| 頭金 | 直接入力する | 万円 | |

毎月のご返済額 |
ボーナス(×年2回) |
物件価格2,280万円 |
![]() |
![]() |
新潟市西区金巻 2037-1
2280万円潤オ2480万円 |
新潟本店
025-385-7987
新潟東店
025-256-8844
上越店
025-520-9460
\敷地50坪超で広々/
●月々5.4万円〜
●スーパー等が車で4分
●全居室2面採光で陽当り良好!
●リビングに畳コーナー隣接
●広々インナーバルコニー付