A棟 中央区長潟1丁目 新潟県新潟市中央区長潟1丁目 6-2|3,280万円の新築一戸建て|センチュリー21越後ホームズ 新潟店
| 価格 | 3,280万円 ![]() |
||||
|---|---|---|---|---|---|
| 所在地 | 新潟県新潟市中央区長潟1丁目 6-2
この地域周辺の物件を見る |
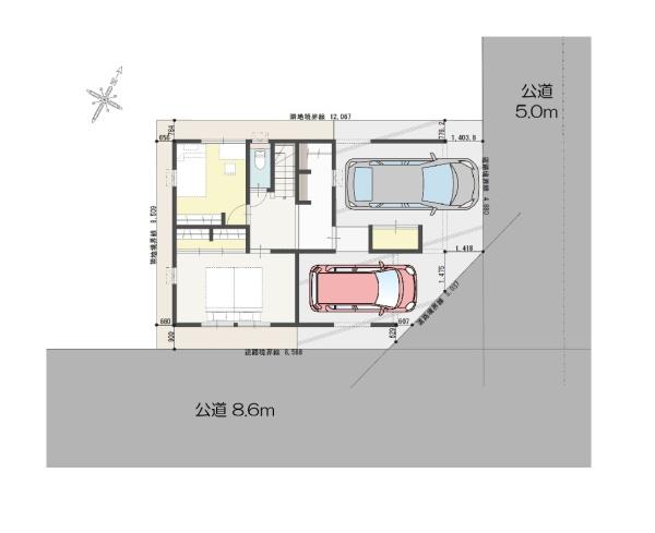
土地面積 | 124.63m² (37.7坪) | 建物面積 | 101.65u |
| 築年月 | 2026年5月築 | 間取り | 3SLDK (-) | ||
| 交通 |
JR上越新幹線 新潟 徒歩32分/バス14分 北谷内 停歩4分
JR白新線 新潟 徒歩32分 JR信越本線 越後石山 徒歩39分 |
||||
| 特徴 |
|
|---|---|
| セールスコメント | スーパー車で3分!アークプラザ新潟も車で5分で近隣に商業施設充実♪バス停徒歩4分 |
| 採光面 | 東南 | 構造/階数 | 木造/地上2階建 |
|---|---|---|---|
| 建ぺい率 | 60(%) | 容積率 | 200(%) |
| 駐車場 | 有 | 現況/引渡し | 建築中/2026年6月下旬 |
| 土地権利 | 所有権 | 私道負担面積 | - |
| 接道状況 | 接道: 北東 公道 道路幅: 5m 接道: 東南 公道 道路幅: 8.6m |
用途地域 |
第一種中高層住居専用地域
|
| セットバック | - | 法令上の制限 | 景観法;日影制限有 |
| 地目 | 宅地 | 地勢 | 平坦 |
| 建築確認番号 | NK第25本01988号 | 都市計画 | 市街化区域 |
| 取引態様 | 一般媒介 | ||
| 情報更新日 | 2026年02月03日 | 次回更新日 | 2026年02月17日 |
| 小学校区 | 山潟小学校 (新潟市中央区) この学区の他の物件を見る |
中学校区 | 山潟中学校 (新潟市中央区) この学区の他の物件を見る |
|---|
| 価格 | 万円 | ||
|---|---|---|---|
| 年利率 | % |
||
| ボーナス払い | 返済年数 | ||
| 頭金 | 直接入力する | 万円 | |

毎月のご返済額 |
ボーナス(×年2回) |
物件価格3,280万円 |
![]() |
![]() |
新潟市中央区長潟1丁目 6-2
3280万円 |
新潟本店
025-385-7987
新潟東店
025-256-8844
上越店
025-520-9460
\高気密高断熱のデザイン住宅/
●アークプラザ新潟車5分
●小学校徒歩9分
●インナーガレージ2台駐車が可能!
― 究工務店のデザイン住宅 ―