【新築戸建】東区中木戸 グラファーレ|オープンハウス情報 | 新潟・上越の不動産はセンチュリー21越後ホームズ
開催中
毎週土曜日・日曜日【新築戸建】東区中木戸 グラファーレ
新潟市東区中木戸
新潟市東区中木戸で新築一戸建ての住宅内覧会を開催いたします。
────────────────
◆◇ 現地見学会開催中!! ◇◆
────────────────
〇日程/年中無休
〇時間/9:00~18:00(時間外対応可)
○お問い合わせ/025-385-7987まで
〇見学方法/現地待合せor当社にご来店
(必ず事前にご予約お願いいたします)
──────────────────────
◆◇ 越後ホームズは「新築住宅専門店」! ◇◆
──────────────────────
◎『メール・LINE』も対応可(ご希望の方のみ)
◎お子様連れも安心のキッズスペース・授乳室完備!
◎お客様のペースに合わせた親切・丁寧な接客をお約束
─────────────────────
◆◇ 住宅ローン&税金も相談無料 ◇◆
─────────────────────
◎住宅ローンが不安な方はぜひ当社にご相談を!
いくらまで借りられる?車のローンがあるけど大丈夫?
など、経験豊富なスタッフが対応します!
◎ローン事前審査からお引渡しまですべてお手伝いします♪
◎賃貸よりお得な『住宅ローン減税』詳しく説明します!
◎贈与のことなど提携税理士へ無料相談ができます♪
-
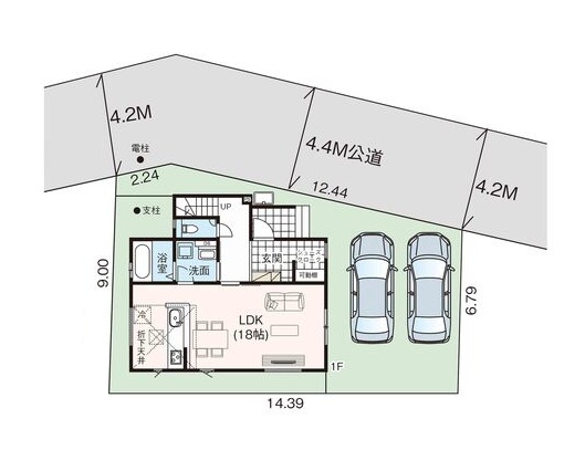
価格2780万円、3LDK、土地面積119.6m2、建物面積98.12m2
-
カースペースには並列2台駐車が可能!
-
【平日&土日祝日いつでもご案内いたします!お気軽にお問合せください!】
【お問合せ先 025-385-7987】
開催日
毎週土曜日・日曜日
開催場所
新潟市東区中木戸220-6
お問い合せ
025-385-7987
| 種別 | 新築一戸建て | 間取り | 4LDK |
|---|---|---|---|
| 交通 | JR信越本線「新潟」バス16分上木戸新町歩5分 | 価格 | 2,780万円 |
| 面積 | 119.6m2(36.17坪) | 地目 | 宅地 |
| 土地権利 | 所有権 | 接道状況 | 道路幅:4.2m、アスファルト舗装、北側(公道) |
| 延床面積 | 98.12m2(29.68坪) | 築年月 | 2025年10月完成 |
| 構造 | 木造 | 建蔽率 | 60% |
| 容積率 | 200% | 建築確認番号 |
-
新潟本店
025-385-7987
-
新潟東店
025-256-8844
-
上越店
025-520-9460



