2号棟 長岡市三和3丁目 第2 クレイドルガーデン 新潟県長岡市三和3丁目 3-4付近|3,380万円の新築一戸建て|センチュリー21越後ホームズ 新潟店
| 価格 | 3,380万円 ![]() |
||||
|---|---|---|---|---|---|
| 所在地 | 新潟県長岡市三和3丁目 3-4付近
この地域周辺の物件を見る |
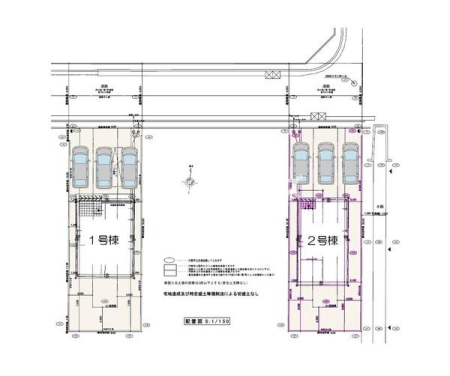
土地面積 | 225.01m² (68.06坪) | 建物面積 | 105.3u |
| 築年月 | 2026年1月築 | 間取り | 4LDK (-) | ||
| 交通 |
JR上越線 宮内 徒歩24分
JR信越本線 宮内 徒歩24分 JR上越新幹線 長岡 徒歩31分/バス12分 市立劇場前 停歩5分 |
||||
| 特徴 |
|
|---|---|
| セールスコメント | \子育てグリーン住宅支援対象/スーパー等のお店が車で5分圏内!バス停も徒歩5分 |
| 採光面 | 南 | 構造/階数 | 木造/地上2階建 |
|---|---|---|---|
| 建ぺい率 | 60(%) | 容積率 | 200(%) |
| 駐車場 | 有 | 現況/引渡し | 建築中/2026年2月上旬 |
| 土地権利 | 所有権 | 私道負担面積 | - |
| 接道状況 | 接道: 北 公道 道路幅: 8m | 用途地域 |
第二種中高層住居専用地域
|
| セットバック | - | 法令上の制限 | - |
| 地目 | 宅地 | 地勢 | 平坦 |
| 建築確認番号 | 第R07-111111号 | 都市計画 | 市街化区域 |
| 取引態様 | 一般媒介 | ||
| 情報更新日 | 2025年12月16日 | 次回更新日 | 2025年12月30日 |
| 小学校区 | 宮内小学校 (長岡市) この学区の他の物件を見る |
中学校区 | 宮内中学校 (長岡市) この学区の他の物件を見る |
|---|
| 価格 | 万円 | ||
|---|---|---|---|
| 年利率 | % |
||
| ボーナス払い | 返済年数 | ||
| 頭金 | 直接入力する | 万円 | |

毎月のご返済額 |
ボーナス(×年2回) |
物件価格3,380万円 |
![]() |
![]() |
長岡市三和3丁目 3-4付近
3380万円 |
新潟本店
025-385-7987
新潟東店
025-256-8844
上越店
025-520-9460
\敷地68坪以上!駐車3台可能/
●40万円の補助金
●前面道路8mで広々
●スーパー等が車で5分圏内
●バス停徒歩5分
●リビングに和室が隣接
●水回り集中設計で家事ラク