5号棟 燕市吉田鴻巣 いろどりアイタウン 新潟県燕市吉田鴻巣 693-4付近|2,590万円の新築一戸建て|センチュリー21越後ホームズ 新潟店
| 価格 | 2,590万円 ![]() |
||||
|---|---|---|---|---|---|
| 所在地 | 新潟県燕市吉田鴻巣 693-4付近
この地域周辺の物件を見る |
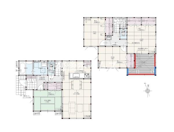
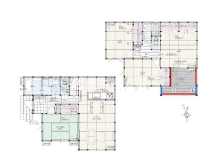
土地面積 | 165m² (49.91坪) | 建物面積 | 103.21u |
| 築年月 | 2026年6月築 | 間取り | 4LDK (-) | ||
| 交通 |
JR越後線 北吉田 徒歩9分
|
||||
| 特徴 |
|
|---|---|
| セールスコメント | 国道116号線近く!スーパー徒歩9分でお買い物やお出掛けも便利な開発分譲地! |
| 採光面 | 南西 | 構造/階数 | 木造/地上2階建 |
|---|---|---|---|
| 建ぺい率 | 60(%) | 容積率 | 200(%) |
| 駐車場 | 有 | 現況/引渡し | 建築中/2026年7月下旬 |
| 土地権利 | 所有権 | 私道負担面積 | - |
| 接道状況 | 接道: 南西 道路幅: 6m | 用途地域 |
指定なし
|
| セットバック | - | 法令上の制限 | 景観法 |
| 地目 | 宅地 | 地勢 | 平坦 |
| 建築確認番号 | 第R07-1127号 | 都市計画 | - |
| 取引態様 | 一般媒介 | ||
| 情報更新日 | 2026年05月19日 | 次回更新日 | 2026年06月02日 |
| 小学校区 | 吉田北小学校 (燕市) この学区の他の物件を見る |
中学校区 | 吉田中学校 (燕市) この学区の他の物件を見る |
|---|
| 価格 | 万円 | ||
|---|---|---|---|
| 年利率 | % |
||
| ボーナス払い | 返済年数 | ||
| 頭金 | 直接入力する | 万円 | |

毎月のご返済額 |
ボーナス(×年2回) |
物件価格2,590万円 |
![]() |
![]() |
燕市吉田鴻巣 693-4付近
2490万円潤オ2690万円 |
新潟本店
025-385-7987
新潟東店
025-256-8844
上越店
025-520-9460
\月々5.3万円〜/
●前面道路6m以上!
●スーパー徒歩10分
●国道116号線が至近
●全居室6帖以上の広々設計
●パントリーなど収納充実
●広々インナーバルコニー