新築戸建 中央区紫竹山7丁目 グラファーレ 新潟県新潟市中央区紫竹山7丁目 14-17(隣地)|4,880万円の新築一戸建て|センチュリー21越後ホームズ 新潟店
| 価格 | 4,880万円 ![]() |
||||
|---|---|---|---|---|---|
| 所在地 | 新潟県新潟市中央区紫竹山7丁目 14-17(隣地)
この地域周辺の物件を見る |
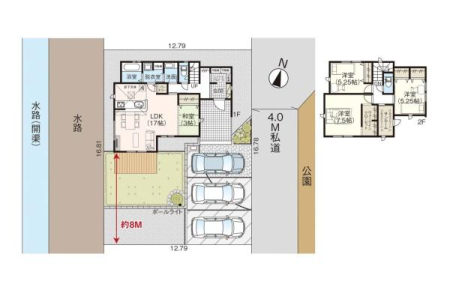
土地面積 | 214.97m² (65.02坪) | 建物面積 | 105.57u |
| 築年月 | 2026年3月築 | 間取り | 4LDK (-) | ||
| 交通 |
JR上越新幹線 新潟 徒歩27分
JR越後線 徒歩33分/バス10分 弁天橋 停歩8分 JR信越本線 越後石山 徒歩45分 |
||||
| 特徴 |
|
|---|---|
| セールスコメント | 紫竹山小学校が徒歩9分!スーパーやドラッグストア徒歩7分、バイパス車で4分 |
| 採光面 | 東南 | 構造/階数 | 木造/地上2階建 |
|---|---|---|---|
| 建ぺい率 | 60(%) | 容積率 | 200(%) |
| 駐車場 | 有 | 現況/引渡し | 建築中/2026年7月下旬 |
| 土地権利 | 所有権 | 私道負担面積 | - |
| 接道状況 | 接道: 東 私道 道路幅: 4m | 用途地域 |
第二種中高層住居専用地域
|
| セットバック | - | 法令上の制限 | - |
| 地目 | 宅地 | 地勢 | 平坦 |
| 建築確認番号 | 第HPA-25-02833-1号 | 都市計画 | 市街化区域 |
| 取引態様 | 一般媒介 | ||
| 情報更新日 | 2026年01月20日 | 次回更新日 | 2026年02月03日 |
| 小学校区 | 紫竹山小学校 (新潟市中央区) この学区の他の物件を見る |
中学校区 | 宮浦中学校 (新潟市中央区) この学区の他の物件を見る |
|---|
| 価格 | 万円 | ||
|---|---|---|---|
| 年利率 | % |
||
| ボーナス払い | 返済年数 | ||
| 頭金 | 直接入力する | 万円 | |

毎月のご返済額 |
ボーナス(×年2回) |
物件価格4,880万円 |
新潟本店
025-385-7987
新潟東店
025-256-8844
上越店
025-520-9460
\即時予約&当日見学/
●敷地65坪・駐車3台可
●前面公園で眺望良好
●スーパーやドラッグストアが徒歩7分
●バイパスまで車で4分