2号棟 秋葉区小須戸 第6 リーブルガーデン 新潟県新潟市秋葉区小須戸 113-3|2,480万円の新築一戸建て|センチュリー21越後ホームズ 新潟店
| 価格 | 2,480万円 ![]() |
||||
|---|---|---|---|---|---|
| 所在地 | 新潟県新潟市秋葉区小須戸 113-3
この地域周辺の物件を見る |
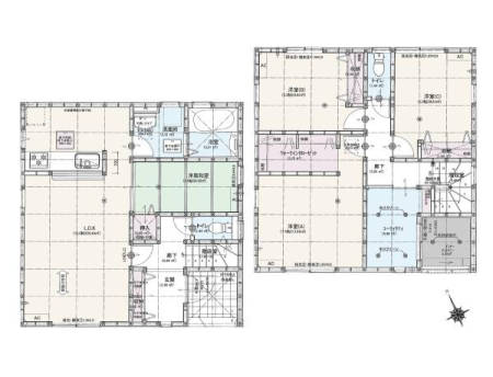
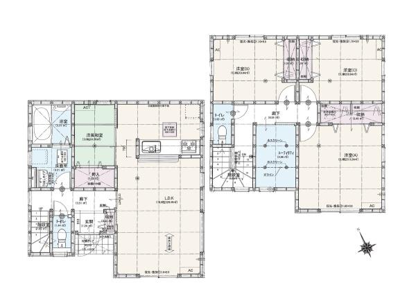
土地面積 | 228.06m² (68.98坪) | 建物面積 | 97.7u |
| 築年月 | 2026年4月築 | 間取り | 4LDK (-) | ||
| 交通 |
JR信越本線 矢代田 徒歩32分
JR信越本線 田上 徒歩58分 JR信越本線 古津 徒歩63分 |
||||
| 特徴 |
|
|---|---|
| セールスコメント | \安心の長期優良住宅/スーパー等が徒歩4分でお買い物便利♪小中学校も徒歩4分! |
| 採光面 | 南西 | 構造/階数 | 木造/地上2階建 |
|---|---|---|---|
| 建ぺい率 | 60(%) | 容積率 | 160(%) |
| 駐車場 | 有 | 現況/引渡し | 建築中/2026年4月下旬 |
| 土地権利 | 所有権 | 私道負担面積 | - |
| 接道状況 | 接道: 北東 私道 道路幅: 4m | 用途地域 |
第一種中高層住居専用地域
|
| セットバック | - | 法令上の制限 | 景観法 |
| 地目 | 宅地 | 地勢 | 平坦 |
| 建築確認番号 | 第R07SHC120524号 | 都市計画 | 市街化区域 |
| 取引態様 | 一般媒介 | ||
| 情報更新日 | 2026年02月03日 | 次回更新日 | 2026年02月17日 |
| 小学校区 | 小須戸小学校 (新潟市秋葉区) この学区の他の物件を見る |
中学校区 | 小須戸中学校 (新潟市秋葉区) この学区の他の物件を見る |
|---|
| 価格 | 万円 | ||
|---|---|---|---|
| 年利率 | % |
||
| ボーナス払い | 返済年数 | ||
| 頭金 | 直接入力する | 万円 | |

毎月のご返済額 |
ボーナス(×年2回) |
物件価格2,480万円 |
![]() |
![]() |
新潟市秋葉区小須戸 113-3
2480万円 |
新潟本店
025-385-7987
新潟東店
025-256-8844
上越店
025-520-9460
\敷地68坪以上・3台駐車可/
●前面道路8mで駐車も安心
●小中学校まで徒歩4分
●スーパーやドラッグストア徒歩4分圏内
●ランドリールーム有
●リビングに和室隣接