3号棟 江南区日水2丁目 第1 クレイドルガーデン 新潟県新潟市江南区日水2丁目 3-7|2,480万円の新築一戸建て|センチュリー21越後ホームズ 新潟店
| 価格 | 2,480万円 ![]() |
||||
|---|---|---|---|---|---|
| 所在地 | 新潟県新潟市江南区日水2丁目 3-7
この地域周辺の物件を見る |
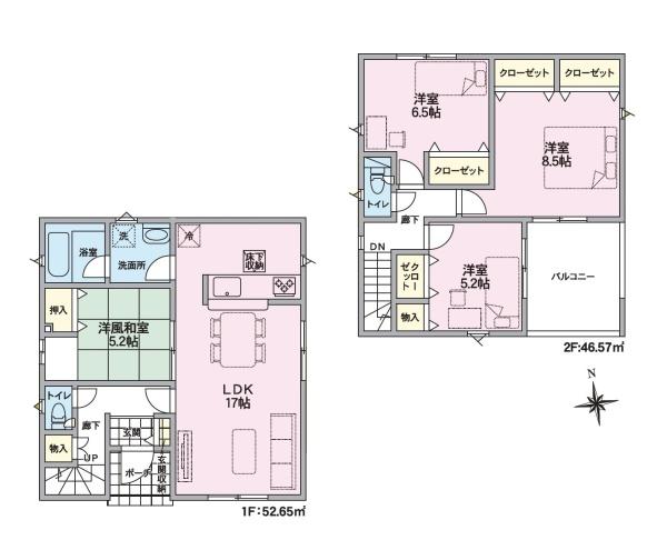
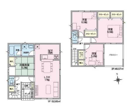
土地面積 | 174.08m² (52.65坪) | 建物面積 | 99.22u |
| 築年月 | 2026年5月築 | 間取り | 4LDK (-) | ||
| 交通 |
JR信越本線 亀田 徒歩33分
JR信越本線 荻川 徒歩44分 JR信越本線 越後石山 徒歩63分 |
||||
| 特徴 |
|
|---|---|
| セールスコメント | 陽当り良好な南側道路!国道49号線アクセス良好コンビニ徒歩5分、スーパー車で4分 |
| 採光面 | 南 | 構造/階数 | 木造/地上2階建 |
|---|---|---|---|
| 建ぺい率 | 60(%) | 容積率 | 200(%) |
| 駐車場 | 有 | 現況/引渡し | 建築中/2026年5月下旬 |
| 土地権利 | 所有権 | 私道負担面積 | あり 12.87m² |
| 接道状況 | 接道: 南 私道 道路幅: 4m | 用途地域 |
指定なし
|
| セットバック | - | 法令上の制限 | - |
| 地目 | 宅地 | 地勢 | 平坦 |
| 建築確認番号 | 第R07SHC120610号 | 都市計画 | 市街化調整区域 |
| 取引態様 | 一般媒介 | ||
| 情報更新日 | 2026年05月08日 | 次回更新日 | 2026年05月22日 |
| 小学校区 | 亀田小学校 (新潟市江南区) この学区の他の物件を見る |
中学校区 | 亀田中学校 (新潟市江南区) この学区の他の物件を見る |
|---|
| 価格 | 万円 | ||
|---|---|---|---|
| 年利率 | % |
||
| ボーナス払い | 返済年数 | ||
| 頭金 | 直接入力する | 万円 | |

毎月のご返済額 |
ボーナス(×年2回) |
物件価格2,480万円 |
![]() |
![]() |
新潟市江南区日水2丁目 3-7
2280万円潤オ2580万円 |
新潟本店
025-385-7987
新潟東店
025-256-8844
上越店
025-520-9460
\地震に強い!耐震等級3/
●城山インター車で3分
●スーパー車で4分!
●和室のある4LDK
●水回り集中設計で家事ラク♪
●南側に広々インナーバルコニー付