新築戸建 新発田市大手町5丁目 2期 グラファーレ 新潟県新発田市大手町5丁目 2-5|2,480万円の新築一戸建て|センチュリー21越後ホームズ 新潟店
| 価格 | 2,480万円 ![]() |
||||
|---|---|---|---|---|---|
| 所在地 | 新潟県新発田市大手町5丁目 2-5
この地域周辺の物件を見る |
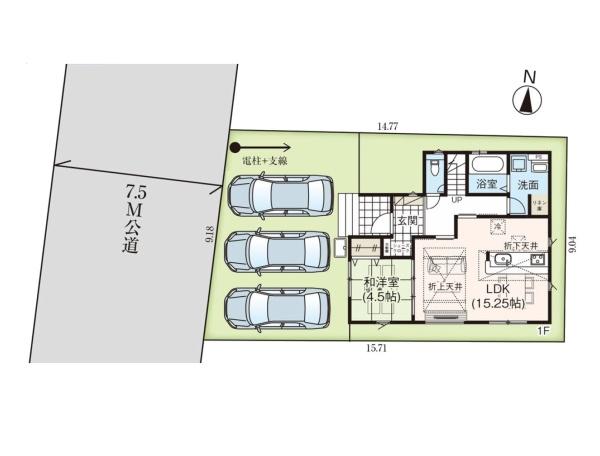
土地面積 | 138.37m² (41.85坪) | 建物面積 | 102.26u |
| 築年月 | 2026年6月築 | 間取り | 4LDK (-) | ||
| 交通 |
JR羽越本線 新発田 徒歩19分
JR白新線 新発田 徒歩19分 |
||||
| 特徴 |
|
|---|---|
| セールスコメント | 外ヶ輪小学校まで徒歩5分、スーパー車で3分バイパスもほど近い好立地♪ |
| 採光面 | - | 構造/階数 | 木造/地上2階建 |
|---|---|---|---|
| 建ぺい率 | 80(%) | 容積率 | 200(%) |
| 駐車場 | 有 | 現況/引渡し | 建築中/2026年7月上旬 |
| 土地権利 | 所有権 | 私道負担面積 | - |
| 接道状況 | 接道: 西 9.18m 公道 道路幅: 7.5m | 用途地域 |
近隣商業地域
|
| セットバック | - | 法令上の制限 | 景観法 |
| 地目 | 宅地 | 地勢 | 平坦 |
| 建築確認番号 | 第HPA-26-01773-1号 | 都市計画 | 市街化区域 |
| 取引態様 | 一般媒介 | ||
| 情報更新日 | 2026年04月14日 | 次回更新日 | 2026年04月28日 |
| 小学校区 | 新発田市立外ヶ輪小学校 (新潟県新発田市) この学区の他の物件を見る |
中学校区 | 本丸中学校 (新潟県新発田市) この学区の他の物件を見る |
|---|
| 価格 | 万円 | ||
|---|---|---|---|
| 年利率 | % |
||
| ボーナス払い | 返済年数 | ||
| 頭金 | 直接入力する | 万円 | |

毎月のご返済額 |
ボーナス(×年2回) |
物件価格2,480万円 |
新潟本店
025-385-7987
新潟東店
025-256-8844
上越店
025-520-9460
●限定1棟!月々5.8万円〜
●駐車3台、前面道路7.5m
●小学校まで徒歩5分
●WICなど収納充実
●ランドリ―スペース有