中古戸建 西区寺尾上5丁目 新潟県新潟市西区寺尾上5丁目|1,890万円の中古一戸建て|センチュリー21越後ホームズ 新潟店
| 価格 | 1,890万円 ![]() |
||||
|---|---|---|---|---|---|
| 所在地 | 新潟県新潟市西区寺尾上5丁目
この地域周辺の物件を見る |
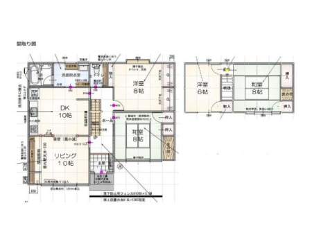
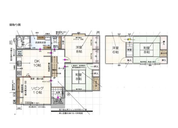
土地面積 | 204.66m² (61.9坪) | 建物面積 | 119.24u |
| 築年月 | 1983年12月築 | 間取り | 4LDK (-) | ||
| 交通 |
JR越後線 寺尾 徒歩14分
JR越後線 新潟大学前 徒歩16分 |
||||
| 特徴 |
|
|---|---|
| セールスコメント | 西大通へアクセス良好な閑静な住宅街。スーパーや小学校まで徒歩10分で環境良好♪ |
| 採光面 | 南西 | 構造/階数 | 木造/地上2階建 |
|---|---|---|---|
| 建ぺい率 | 60(%) | 容積率 | 200(%) |
| 駐車場 | 有 | 現況/引渡し | 空家/即時 |
| 土地権利 | 所有権 | 私道負担面積 | - |
| 接道状況 | 接道: 南西 道路幅: 4m | 用途地域 |
第一種住居地域
|
| セットバック | - | 法令上の制限 | - |
| 地目 | 宅地 | 地勢 | 平坦 |
| 建築確認番号 | 都市計画 | 市街化区域 | |
| 取引態様 | 一般媒介 | ||
| 情報更新日 | 2026年05月19日 | 次回更新日 | 2026年06月02日 |
| 小学校区 | 新通小学校 (新潟市西区) この学区の他の物件を見る |
中学校区 | 坂井輪中学校 (新潟市西区) この学区の他の物件を見る |
|---|
| 価格 | 万円 | ||
|---|---|---|---|
| 年利率 | % |
||
| ボーナス払い | 返済年数 | ||
| 頭金 | 直接入力する | 万円 | |

毎月のご返済額 |
ボーナス(×年2回) |
物件価格1,890万円 |
新潟本店
025-385-7987
新潟東店
025-256-8844
上越店
025-520-9460
【いつでも見学OK】
●敷地61.9坪!駐車3〜4台可
●LDK広々20帖
●スーパーや小学校徒歩10分
●西大通アクセス良好