新築戸建 北区早通南4丁目 第4 クレイドルガーデン 新潟県新潟市北区早通南4丁目 3-10|2,780万円の新築一戸建て|センチュリー21越後ホームズ 新潟店
| 価格 | 2,780万円 ![]() |
||||
|---|---|---|---|---|---|
| 所在地 | 新潟県新潟市北区早通南4丁目 3-10
この地域周辺の物件を見る |
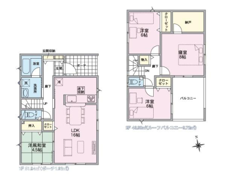
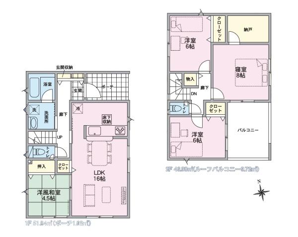
土地面積 | 221.76m² (67.08坪) | 建物面積 | 98.82u |
| 築年月 | 2026年7月築 | 間取り | 4SLDK (-) | ||
| 交通 |
JR白新線 早通 徒歩7分
|
||||
| 特徴 |
|
|---|---|
| セールスコメント | \地震に強い耐震等級3/早通駅まで徒歩7分、小学校も徒歩10分で通勤通学も便利! |
| 採光面 | 南 | 構造/階数 | 木造/地上2階建 |
|---|---|---|---|
| 建ぺい率 | 50(%) | 容積率 | 100(%) |
| 駐車場 | 有 | 現況/引渡し | 建築中/2026年7月中旬 |
| 土地権利 | 所有権 | 私道負担面積 | - |
| 接道状況 | 接道: 南 17.05m 公道 道路幅: 4m | 用途地域 |
第一種低層住居専用地域
|
| セットバック | - | 法令上の制限 | 景観法 |
| 地目 | 宅地 | 地勢 | 平坦 |
| 建築確認番号 | 第R07SHC126397号 | 都市計画 | 市街化区域 |
| 取引態様 | 一般媒介 | ||
| 情報更新日 | 2026年05月26日 | 次回更新日 | 2026年06月09日 |
| 小学校区 | 早通南小学校 (新潟市北区) この学区の他の物件を見る |
中学校区 | 早通中学校 (新潟市北区) この学区の他の物件を見る |
|---|
| 価格 | 万円 | ||
|---|---|---|---|
| 年利率 | % |
||
| ボーナス払い | 返済年数 | ||
| 頭金 | 直接入力する | 万円 | |

毎月のご返済額 |
ボーナス(×年2回) |
物件価格2,780万円 |
新潟本店
025-385-7987
新潟東店
025-256-8844
上越店
025-520-9460
◆敷地67坪×駐車3台可能
◆陽当り良好な南向き
◆駅徒歩7分・小学校徒歩10分
◆ワークスペースにも最適な納戸
◆陽当り良好な全居室2面採光
◆広々インナーバルコニー