1号棟 長岡市川崎1丁目 第1 クレイドルガーデン 新潟県長岡市川崎1丁目 2602-2(隣地)|3,080万円の新築一戸建て|センチュリー21越後ホームズ 新潟店

新潟の不動産はセンチュリー21越後ホームズ

新築一戸建て

1号棟 長岡市川崎1丁目 第1 クレイドルガーデンNEW

お気に入り
価格 3,080万円 ローンシミュレーション
所在地 新潟県長岡市川崎1丁目 2602-2(隣地)
この地域周辺の物件を見る
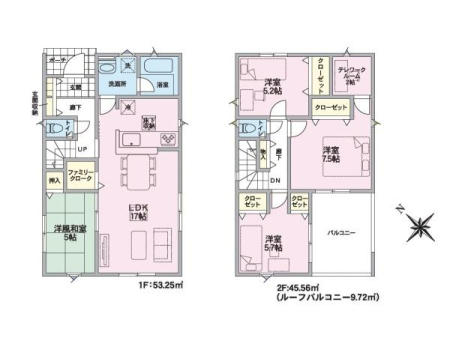
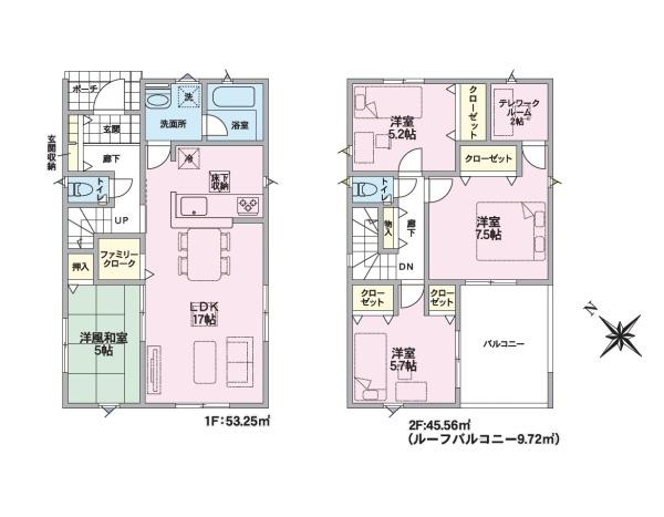
土地面積 171.03m² (51.73坪) 建物面積 98.81u
築年月 2026年7月築 間取り 4SLDK (-)
交通
JR上越新幹線 長岡 徒歩19分
JR上越線 長岡 徒歩19分
JR信越本線 長岡 徒歩19分
ここがおすすめ

◆敷地51.7坪×角地
◆川崎小学校が徒歩8分で通学安心
◆アクロスプラザ長岡まで車で2分
◆テレワークルーム有
◆陽当り良好な全居室2面採光
◆広々インナーバルコニー

お問い合わせ、資料請求、見学のお申し込みはこちらから

電話をかける(携帯・PHS可)
025-385-7987
「ホームページを見た」とお伝え下さい。

お問い合わせ番号をお伝えください
センチュリー21越後ホームズ 新潟店
RHS-199001-2908

内見予約
お問合せ
lineバナー

セールスポイント

特徴
  • フローリング
  • システムキッチン
  • カウンターキッチン
  • シャンプードレッサー
  • 追い焚き
  • 給湯器
  • シャワー
  • 浴室乾燥機
  • ガスコンロ
  • コンロ三口
  • 床下収納
  • バルコニー
  • TVドアホン
  • カースペース2台
  • 都市ガス
  • 角地
  • 本下水
  • 新着物件
  • カースペース2台以上
セールスコメント アクロスプラザ長岡まで車で2分で日々のお買い物便利♪川崎小学校まで徒歩8分の立地

物件概要

採光面 南西 構造/階数 木造/地上2階建
建ぺい率 50(%) 容積率 100(%)
駐車場 現況/引渡し 建築中/2026年7月下旬
土地権利 所有権 私道負担面積 -

接道状況 接道: 東南 17.5m 私道 道路幅: 4.5m
接道: 北東 公道 道路幅: 9.44m
用途地域
第一種低層住居専用地域
セットバック - 法令上の制限 -
地目 宅地 地勢 平坦
建築確認番号 第R07SHC122267号 都市計画 市街化区域
取引態様 一般媒介
情報更新日 2026年04月23日 次回更新日 2026年05月07日
※各種情報と差異がある場合は現況優先となります

学区情報

小学校区 川崎小学校
(長岡市)
この学区の他の物件を見る
中学校区 東北中学校
(長岡市)
この学区の他の物件を見る
※物件情報の学区情報について
当サイト物件情報に記載されております通学区域(学区)情報は、国土数値情報ダウンロードサービスが提供する小学校区データ【2021年度】及び中学校区データ【2021年度】を元に加工したものですので、記載情報が現在の学区域と異なる場合がございます。
国土数値情報ダウンロードサービスのWEBサイト上で記述通り、データは必ずしも正確とは言えません。また、通学区域(学区)は毎年見直しの対象となりますので、そちらを踏まえ学区情報は参考としてご活用下さい。

お問い合わせ、資料請求、見学のお申し込みはこちらから

電話をかける(携帯・PHS可)
025-385-7987
「ホームページを見た」とお伝え下さい。

お問い合わせ番号をお伝えください
センチュリー21越後ホームズ 新潟店
RHS-199001-2908

内見予約
お問合せ

この物件でローンシミュレーションする

価格 万円
年利率
ボーナス払い 返済年数
頭金 直接入力する 万円

毎月のご返済額

ボーナス(×年2回)

物件価格

3,080万円
※返済金額はあくまでも目安です。

こちらの物件は複数区画の分譲地・他にも販売中のマンションがあります。

長岡市川崎1丁目 2602-2(隣地)
2880万円潤オ3280万円
  • こちらの物件を見たお客様はこんな物件もチェックしています。
  • お気に入り物件

電話をかける(携帯・PHS可)
025-385-7987
「ホームページを見た」とお伝え下さい。

お問い合わせ番号をお伝えください
センチュリー21越後ホームズ 新潟店
RHS-199001-2908

内見予約
お問合せ

お問い合わせ

  1. 1
    内容入力
  2. 2
    内容確認
  3. 3
    完了
お問合せ内容必須
【備考欄】
詳細な見学ご希望時間、ご質問、ご希望条件などがございましたらお聞かせ下さい。
(2000文字以内)
お名前必須
メールアドレス必須
※ご記入いただいたメールアドレス宛てに、お問合せ内容の確認メールをお送りいたします。
※Yahoo!メールなどのフリーメールをご利用の場合、迷惑メールフォルダに入る場合があります。
 迷惑メールのフォルダ・設定等をご確認下さい。
電話番号必須
FAX(任意)
※ご入力いただいたお客さまの個人情報は、「個人情報の取扱いについて」に基づき適正に取り扱います。必ずお読みになり、同意の上お問い合わせください。

お気軽にお問い合わせください

025-385-7987
物件番号 RHS-199001-2908
※「ホームページを見た」
とお伝え下さい。