2号棟 中央区沼垂東6丁目 第2 クレイドルガーデン 新潟県新潟市中央区沼垂東6丁目 2-10(北東側 向い)|3,280万円の新築一戸建て|センチュリー21越後ホームズ 新潟店
| 価格 | 3,280万円 ![]() |
||||
|---|---|---|---|---|---|
| 所在地 | 新潟県新潟市中央区沼垂東6丁目 2-10(北東側 向い)
この地域周辺の物件を見る |
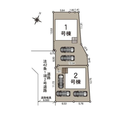
土地面積 | 149.74m² (45.29坪) | 建物面積 | 95.58u |
| 築年月 | 2026年8月築 | 間取り | 4SLDK (-) | ||
| 交通 |
JR上越新幹線 新潟 徒歩25分
JR白新線 新潟 徒歩25分 JR信越本線 新潟 徒歩25分 |
||||
| 特徴 |
|
|---|---|
| セールスコメント | 栗ノ木バイパス車で3分、市街地や東区が程近い閑静な住宅街。沼垂小学校が徒歩10分 |
| 採光面 | 東南 | 構造/階数 | 木造/地上2階建 |
|---|---|---|---|
| 建ぺい率 | 80(%) | 容積率 | 300(%) |
| 駐車場 | 有 | 現況/引渡し | 建築中/2026年8月下旬 |
| 土地権利 | 所有権 | 私道負担面積 | - |
| 接道状況 | 接道: 南西 私道 道路幅: 6m | 用途地域 |
近隣商業地域
|
| セットバック | - | 法令上の制限 | 準防火地域 |
| 地目 | 宅地 | 地勢 | 平坦 |
| 建築確認番号 | 第R07SHC125785号 | 都市計画 | 市街化区域 |
| 取引態様 | 一般媒介 | ||
| 情報更新日 | 2026年04月23日 | 次回更新日 | 2026年05月07日 |
| 小学校区 | 沼垂小学校 (新潟市中央区) この学区の他の物件を見る |
中学校区 | 東新潟中学校 (新潟市中央区) この学区の他の物件を見る |
|---|
| 価格 | 万円 | ||
|---|---|---|---|
| 年利率 | % |
||
| ボーナス払い | 返済年数 | ||
| 頭金 | 直接入力する | 万円 | |

毎月のご返済額 |
ボーナス(×年2回) |
物件価格3,280万円 |
![]() |
![]() |
新潟市中央区沼垂東6丁目 2-10(北東側 向い)
3280万円潤オ3380万円 |
新潟本店
025-385-7987
新潟東店
025-256-8844
上越店
025-520-9460
◆月々支払7.7万円〜
◆沼垂小が徒歩10分
◆駐車2〜3台可能
◆前面道路6mで広々
◆LDK+畳コーナーで19.5帖
◆大容量のWICやテレワークルーム有