新築戸建 江南区日水3丁目 新潟県新潟市江南区日水3丁目 1-13|3,280万円の新築一戸建て|センチュリー21越後ホームズ 新潟店

新潟の不動産はセンチュリー21越後ホームズ

新築一戸建て

新築戸建 江南区日水3丁目NEW

お気に入り
価格 3,280万円 ローンシミュレーション
所在地 新潟県新潟市江南区日水3丁目 1-13
この地域周辺の物件を見る
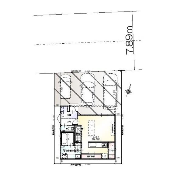
土地面積 111.25m² (33.65坪) 建物面積 90.59u
築年月 2026年7月築 間取り 3LDK (-)
交通
JR信越本線 亀田 徒歩32分
JR信越本線 荻川 徒歩43分
ここがおすすめ

[高気密・高断熱×デザイン住宅]
◆前面道路7.89m、駐車2〜3台可納
◆大容量のパントリーやWIC完備
◆食洗機付きのシステムキッチンなど設備充実

お問い合わせ、資料請求、見学のお申し込みはこちらから

電話をかける(携帯・PHS可)
025-385-7987
「ホームページを見た」とお伝え下さい。

お問い合わせ番号をお伝えください
センチュリー21越後ホームズ 新潟店
RHS-199001-2928

内見予約
お問合せ
lineバナー

セールスポイント

特徴
  • フローリング
  • デザイナーズ
  • システムキッチン
  • カウンターキッチン
  • シャンプードレッサー
  • 給湯器
  • シャワー
  • バルコニー
  • TVドアホン
  • カースペース3台
  • 都市ガス
  • 本下水
  • 新着物件
  • カースペース2台以上
セールスコメント 城山インター車で1分、コンビニ徒歩1分で便利な立地!亀田大通りやスーパー車で5分

物件概要

採光面 - 構造/階数 木造/地上2階建
建ぺい率 60(%) 容積率 200(%)
駐車場 現況/引渡し 建築中/2026年8月上旬
土地権利 所有権 私道負担面積 -

接道状況 接道: 北西 公道 道路幅: 7.8m 用途地域
指定なし
セットバック - 法令上の制限 景観法
地目 宅地 地勢 平坦
建築確認番号 第R07-2518号 都市計画 市街化調整区域
取引態様 一般媒介
情報更新日 2026年04月25日 次回更新日 2026年05月09日
※各種情報と差異がある場合は現況優先となります

学区情報

小学校区 亀田小学校
(新潟市江南区)
この学区の他の物件を見る
中学校区 亀田中学校
(新潟市江南区)
この学区の他の物件を見る
※物件情報の学区情報について
当サイト物件情報に記載されております通学区域(学区)情報は、国土数値情報ダウンロードサービスが提供する小学校区データ【2021年度】及び中学校区データ【2021年度】を元に加工したものですので、記載情報が現在の学区域と異なる場合がございます。
国土数値情報ダウンロードサービスのWEBサイト上で記述通り、データは必ずしも正確とは言えません。また、通学区域(学区)は毎年見直しの対象となりますので、そちらを踏まえ学区情報は参考としてご活用下さい。

お問い合わせ、資料請求、見学のお申し込みはこちらから

電話をかける(携帯・PHS可)
025-385-7987
「ホームページを見た」とお伝え下さい。

お問い合わせ番号をお伝えください
センチュリー21越後ホームズ 新潟店
RHS-199001-2928

内見予約
お問合せ

この物件でローンシミュレーションする

価格 万円
年利率
ボーナス払い 返済年数
頭金 直接入力する 万円

毎月のご返済額

ボーナス(×年2回)

物件価格

3,280万円
※返済金額はあくまでも目安です。
  • こちらの物件を見たお客様はこんな物件もチェックしています。
  • お気に入り物件

電話をかける(携帯・PHS可)
025-385-7987
「ホームページを見た」とお伝え下さい。

お問い合わせ番号をお伝えください
センチュリー21越後ホームズ 新潟店
RHS-199001-2928

内見予約
お問合せ

お問い合わせ

  1. 1
    内容入力
  2. 2
    内容確認
  3. 3
    完了
お問合せ内容必須
【備考欄】
詳細な見学ご希望時間、ご質問、ご希望条件などがございましたらお聞かせ下さい。
(2000文字以内)
お名前必須
メールアドレス必須
※ご記入いただいたメールアドレス宛てに、お問合せ内容の確認メールをお送りいたします。
※Yahoo!メールなどのフリーメールをご利用の場合、迷惑メールフォルダに入る場合があります。
 迷惑メールのフォルダ・設定等をご確認下さい。
電話番号必須
FAX(任意)
※ご入力いただいたお客さまの個人情報は、「個人情報の取扱いについて」に基づき適正に取り扱います。必ずお読みになり、同意の上お問い合わせください。

お気軽にお問い合わせください

025-385-7987
物件番号 RHS-199001-2928
※「ホームページを見た」
とお伝え下さい。