中古戸建 上越市仲町5丁目 新潟県上越市仲町5丁目|1,530万円の中古一戸建て|センチュリー21越後ホームズ 上越店
| 価格 | 1,530万円 ![]() |
||||
|---|---|---|---|---|---|
| 所在地 | 新潟県上越市仲町5丁目
この地域周辺の物件を見る |
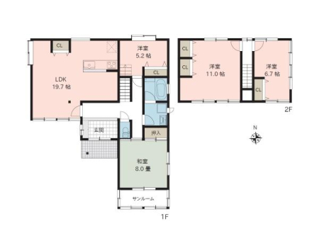
土地面積 | 279.35m² (84.5坪) | 建物面積 | 138u |
| 築年月 | 1997年8月築 | 間取り | 3LDK (-) | ||
| 交通 |
妙高はねうまライン 高田 徒歩3分
|
||||
| 特徴 |
|
|---|---|
| セールスコメント | - |
| 採光面 | 南 | 構造/階数 | 木造/地上2階建 |
|---|---|---|---|
| 建ぺい率 | 80(%) | 容積率 | 500(%) |
| 駐車場 | 有 | 現況/引渡し | 居住中/相談 |
| 土地権利 | 所有権 | 私道負担面積 | - |
| 接道状況 | 接道: 東 公道 道路幅: 6.1m 接道: 西 私道 道路幅: 2.9m |
用途地域 |
商業地域
|
| セットバック | - | 法令上の制限 | - |
| 地目 | 宅地 | 地勢 | 平坦 |
| 建築確認番号 | 都市計画 | 市街化区域 | |
| 取引態様 | 専属専任媒介 | ||
| 情報更新日 | 2026年05月01日 | 次回更新日 | 2026年05月15日 |
| 小学校区 | 上越市立大町小学校 (新潟県上越市) この学区の他の物件を見る |
中学校区 | 城北中学校 (新潟県上越市) この学区の他の物件を見る |
|---|
| 価格 | 万円 | ||
|---|---|---|---|
| 年利率 | % |
||
| ボーナス払い | 返済年数 | ||
| 頭金 | 直接入力する | 万円 | |

毎月のご返済額 |
ボーナス(×年2回) |
物件価格1,530万円 |
新潟本店
025-385-7987
新潟東店
025-256-8844
上越店
025-520-9460
◎2階建て3LDK+2納戸のゆとりある住まい
◎敷地内消雪設備完備