新築戸建 南区西白根 第1 クレイドルガーデン 新潟県新潟市南区西白根 1554-17(隣地)|2,480万円の新築一戸建て|センチュリー21越後ホームズ 新潟店
| 価格 | 2,480万円 ![]() |
||||
|---|---|---|---|---|---|
| 所在地 | 新潟県新潟市南区西白根 1554-17(隣地)
この地域周辺の物件を見る |
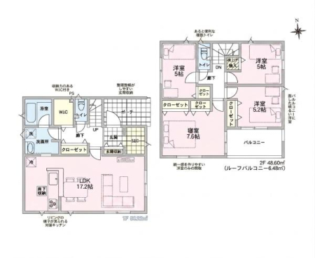
土地面積 | 165.95m² (50.19坪) | 建物面積 | 98.82u |
| 築年月 | 2026年7月築 | 間取り | 4LDK (-) | ||
| 交通 |
JR信越本線 矢代田
|
||||
| 特徴 |
|
|---|---|
| セールスコメント | バイパスやイオン白根店など車で5分圏内!スーパーやドラッグストア徒歩圏内便利 |
| 採光面 | 南 | 構造/階数 | 木造/地上2階建 |
|---|---|---|---|
| 建ぺい率 | 80(%) | 容積率 | 200(%) |
| 駐車場 | 有 | 現況/引渡し | 建築中/2026年7月下旬 |
| 土地権利 | 所有権 | 私道負担面積 | - |
| 接道状況 | 接道: 北 道路幅: 6m 接道: 東 公道 道路幅: 6m |
用途地域 |
指定なし
|
| セットバック | - | 法令上の制限 | 準防火地域 |
| 地目 | 宅地 | 地勢 | 平坦 |
| 建築確認番号 | 第R08SHC103627号 | 都市計画 | 市街化調整区域 |
| 取引態様 | 一般媒介 | ||
| 情報更新日 | 2026年04月23日 | 次回更新日 | 2026年05月07日 |
| 小学校区 | 味方小学校 (新潟市南区) この学区の他の物件を見る |
中学校区 | 味方中学校 (新潟市南区) この学区の他の物件を見る |
|---|
| 価格 | 万円 | ||
|---|---|---|---|
| 年利率 | % |
||
| ボーナス払い | 返済年数 | ||
| 頭金 | 直接入力する | 万円 | |

毎月のご返済額 |
ボーナス(×年2回) |
物件価格2,480万円 |
新潟本店
025-385-7987
新潟東店
025-256-8844
上越店
025-520-9460
≪限定1棟≫敷地50坪の角地
●月々5.8万円〜
●前面道路6mで広々
●イオンやバイパス車で5分
◆家事ラクの水回り集中設計
◆WICやシューズクロークなど収納充実