新築戸建 東区竹尾4丁目 新潟県新潟市東区竹尾4丁目 2-33(隣地)|2,980万円の新築一戸建て|センチュリー21越後ホームズ 新潟店
| 価格 | 2,980万円 ![]() |
||||
|---|---|---|---|---|---|
| 所在地 | 新潟県新潟市東区竹尾4丁目 2-33(隣地)
この地域周辺の物件を見る |
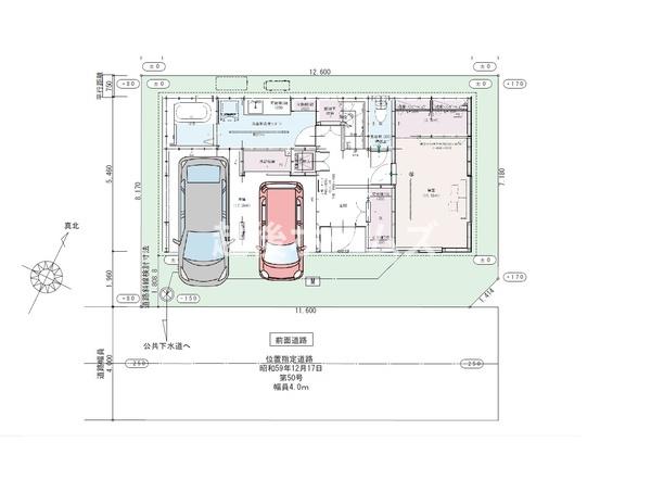
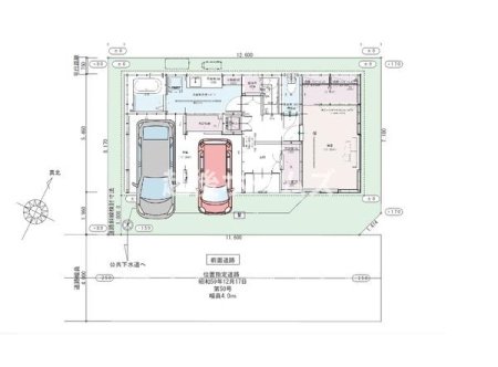
土地面積 | 102.05m² (30.87坪) | 建物面積 | 113.85u |
| 築年月 | 2026年7月築 | 間取り | 3LDK (-) | ||
| 交通 |
JR上越新幹線 新潟 徒歩50分/バス31分 牡丹山小学校入口 停歩5分
JR白新線 東新潟 徒歩28分 JR信越本線 越後石山 徒歩37分 |
||||
| 特徴 |
|
|---|---|
| セールスコメント | 牡丹山小学校まで徒歩7分!バイパスや赤道もアクセス良好で通勤通学も安心! |
| 採光面 | 東南 | 構造/階数 | 木造/地上2階建 |
|---|---|---|---|
| 建ぺい率 | 60(%) | 容積率 | 160(%) |
| 駐車場 | 有 | 現況/引渡し | 建築中/2026年8月下旬 |
| 土地権利 | 所有権 | 私道負担面積 | - |
| 接道状況 | 接道: 東南 道路幅: 4m | 用途地域 |
第一種中高層住居専用地域
|
| セットバック | - | 法令上の制限 | 景観法;準防火地域 |
| 地目 | 宅地 | 地勢 | 平坦 |
| 建築確認番号 | NK第25本01464号 | 都市計画 | 市街化区域 |
| 取引態様 | 一般媒介 | ||
| 情報更新日 | 2026年04月14日 | 次回更新日 | 2026年04月28日 |
| 小学校区 | 牡丹山小学校 (新潟市東区) この学区の他の物件を見る |
中学校区 | 木戸中学校 (新潟市東区) この学区の他の物件を見る |
|---|
| 価格 | 万円 | ||
|---|---|---|---|
| 年利率 | % |
||
| ボーナス払い | 返済年数 | ||
| 頭金 | 直接入力する | 万円 | |

毎月のご返済額 |
ボーナス(×年2回) |
物件価格2,980万円 |
新潟本店
025-385-7987
新潟東店
025-256-8844
上越店
025-520-9460
\高気密・高断熱のデザイン住宅/
●外部収納付ガレージ
●バイパス車で3分
●牡丹山小学校まで徒歩7分
●シューズロークやWIC等、収納充実