新築戸建 東区中山6丁目 第7 クレイドルガーデン 新潟県新潟市東区中山6丁目 2-3|3,280万円の新築一戸建て|センチュリー21越後ホームズ 新潟店
| 価格 | 3,280万円値下がり ![]() |
||||
|---|---|---|---|---|---|
| 所在地 | 新潟県新潟市東区中山6丁目 2-3
この地域周辺の物件を見る |
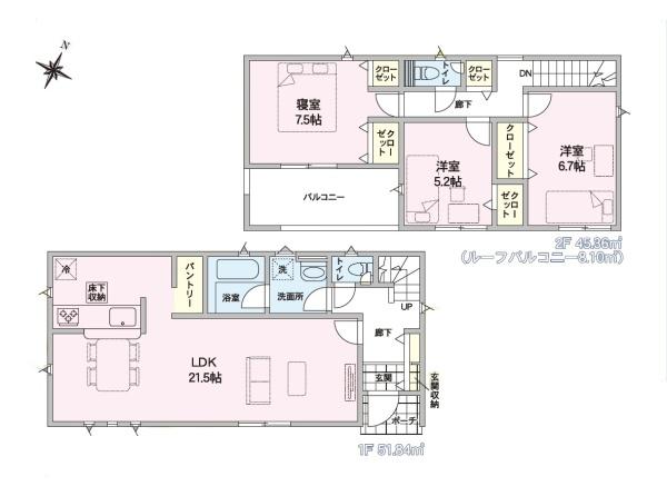
土地面積 | 143.84m² (43.51坪) | 建物面積 | 97.2u |
| 築年月 | 2026年4月築 | 間取り | 3LDK (-) | ||
| 交通 |
JR信越本線 越後石山 徒歩29分
JR白新線 東新潟 徒歩44分 |
||||
| 特徴 |
|
|---|---|
| セールスコメント | スーパー徒歩1分!徒歩圏内に商業施設充実♪木戸小学校まで徒歩10分で通学も安心 |
| 採光面 | - | 構造/階数 | 木造/地上2階建 |
|---|---|---|---|
| 建ぺい率 | 60(%) | 容積率 | 200(%) |
| 駐車場 | 有 | 現況/引渡し | 新築/即時 |
| 土地権利 | 所有権 | 私道負担面積 | - |
| 接道状況 | 接道: 東南 公道 道路幅: 7.2m | 用途地域 |
第一種住居地域
|
| セットバック | - | 法令上の制限 | 景観法 |
| 地目 | 宅地 | 地勢 | 平坦 |
| 建築確認番号 | 第R07SHC101135号 | 都市計画 | 市街化区域 |
| 取引態様 | 一般媒介 | ||
| 情報更新日 | 2026年05月12日 | 次回更新日 | 2026年05月26日 |
| 小学校区 | 木戸小学校 (新潟市東区) この学区の他の物件を見る |
中学校区 | 東新潟中学校 (新潟市東区) この学区の他の物件を見る |
|---|
| 価格 | 万円 | ||
|---|---|---|---|
| 年利率 | % |
||
| ボーナス払い | 返済年数 | ||
| 頭金 | 直接入力する | 万円 | |

毎月のご返済額 |
ボーナス(×年2回) |
物件価格3,280万円 |
新潟本店
025-385-7987
新潟東店
025-256-8844
上越店
025-520-9460
◆月々の支払8万円〜
◆スーパー徒歩1分、近隣商業施設充実
◆木戸小学校まで徒歩10分
◆バイパスや赤道へのアクセス良好
◆21.5帖広々LDK
◆便利なパントリー